Официальное опубликование правовых актов
ОФИЦИАЛЬНОЕ ОПУБЛИКОВАНИЕ
Постановление Правительства Севастополя от 26.03.2021 № 114-ПП
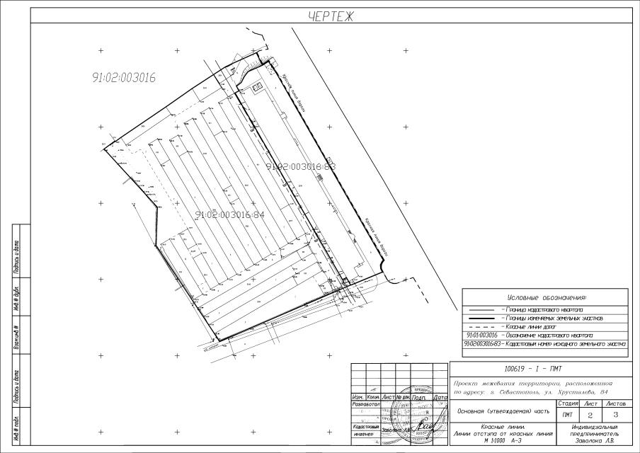
"Об утверждении документации по планировке территории "Проект межевания территории, расположенной по адресу: г. Севастополь, ул. Хрусталева, 84"
Номер опубликования: 9200202104020023
Дата опубликования: 02.04.2021
Страница №17 из 19:
Увеличить