Официальное опубликование правовых актов
ОФИЦИАЛЬНОЕ ОПУБЛИКОВАНИЕ
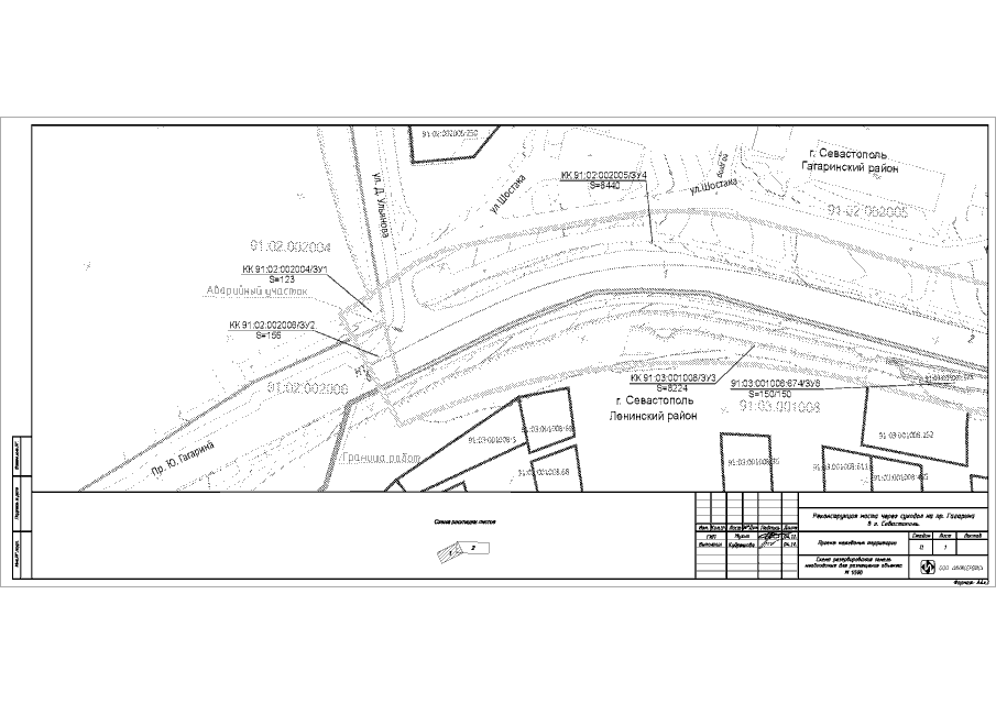
Постановление Правительства Севастополя от 03.10.2018 № 651-ПП "Об утверждении градостроительной документации проекта планировки и проекта межевания территории по объекту "Реконструкция моста через суходол на пр. Гагарина в г. Севастополь"
Номер опубликования: 9200201810090021
Дата опубликования: 09.10.2018
Страница №38 из 42:
Увеличить