Приказ Министерства культуры Республики Крым от 25.09.2024 № 472-ОКН
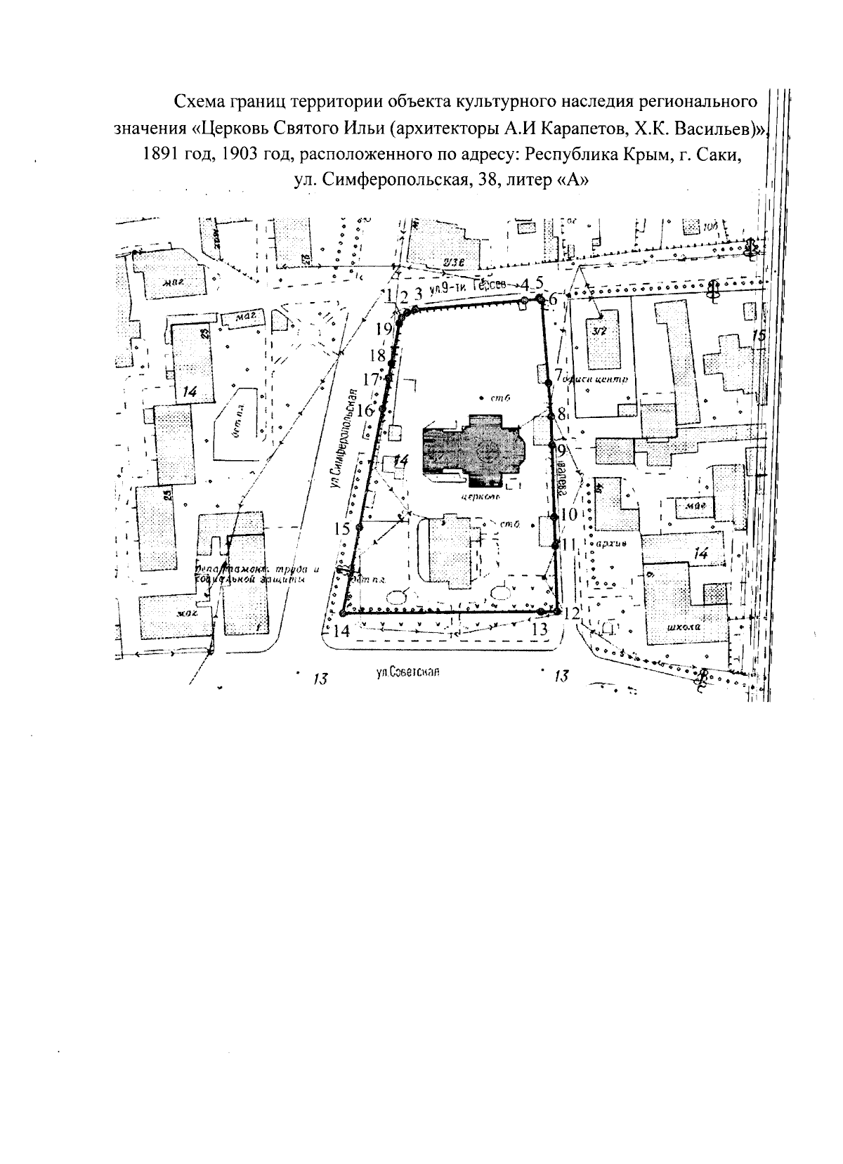
"О включении выявленного объекта культурного наследия "Церковь Святого Ильи (архитектор Х. К. Васильев)", 1903 год, расположенного по адресу: Республика Крым, г. Саки, ул. Симферопольская, 38, в единый государственный реестр объектов культурного наследия (памятников истории и культуры) народов Российской Федерации в качестве объекта культурного наследия регионального значения и утверждении границ территории, режимов использования земель в границах территории объекта культурного наследия регионального значения"
(Зарегистрирован 01.10.2024 № 1699)
"О включении выявленного объекта культурного наследия "Церковь Святого Ильи (архитектор Х. К. Васильев)", 1903 год, расположенного по адресу: Республика Крым, г. Саки, ул. Симферопольская, 38, в единый государственный реестр объектов культурного наследия (памятников истории и культуры) народов Российской Федерации в качестве объекта культурного наследия регионального значения и утверждении границ территории, режимов использования земель в границах территории объекта культурного наследия регионального значения"
(Зарегистрирован 01.10.2024 № 1699)
Номер опубликования: 9101202410040005
Дата опубликования:
04.10.2024
