Официальное опубликование правовых актов
ОФИЦИАЛЬНОЕ ОПУБЛИКОВАНИЕ
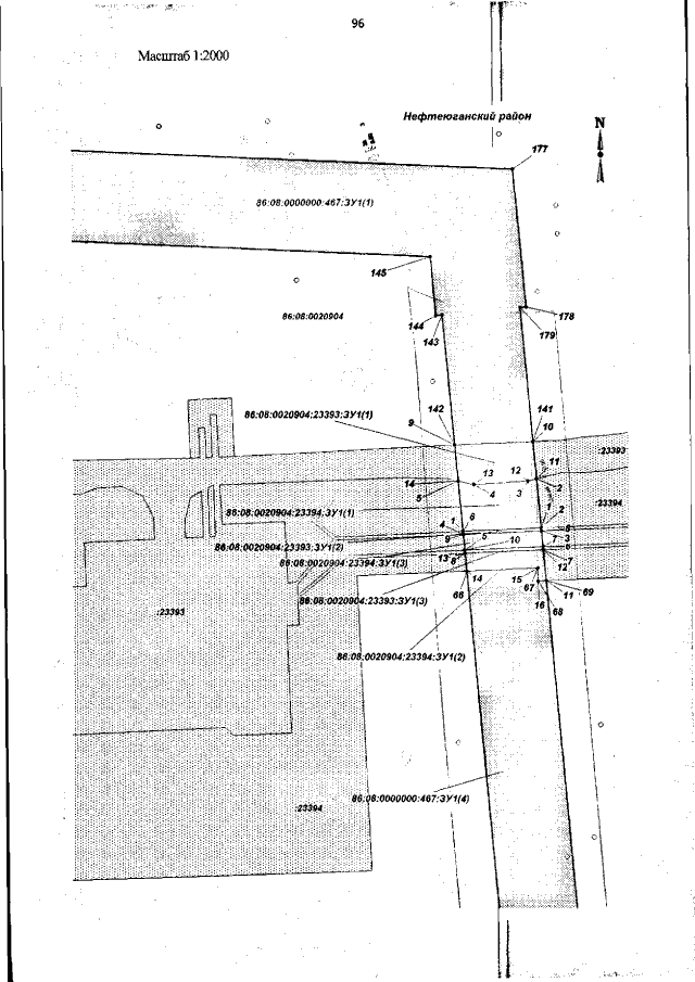
Приказ Департамента пространственного развития и архитектуры Ханты-Мансийского автономного округа - Югры от 05.10.2022 № 9-нп
"Об утверждении документации по планировке территории"
(Зарегистрирован 07.10.2022 № 6379)
Номер опубликования: 8601202210130002
Дата опубликования: 13.10.2022
Страница №96 из 328:
Увеличить