Официальное опубликование правовых актов
ОФИЦИАЛЬНОЕ ОПУБЛИКОВАНИЕ
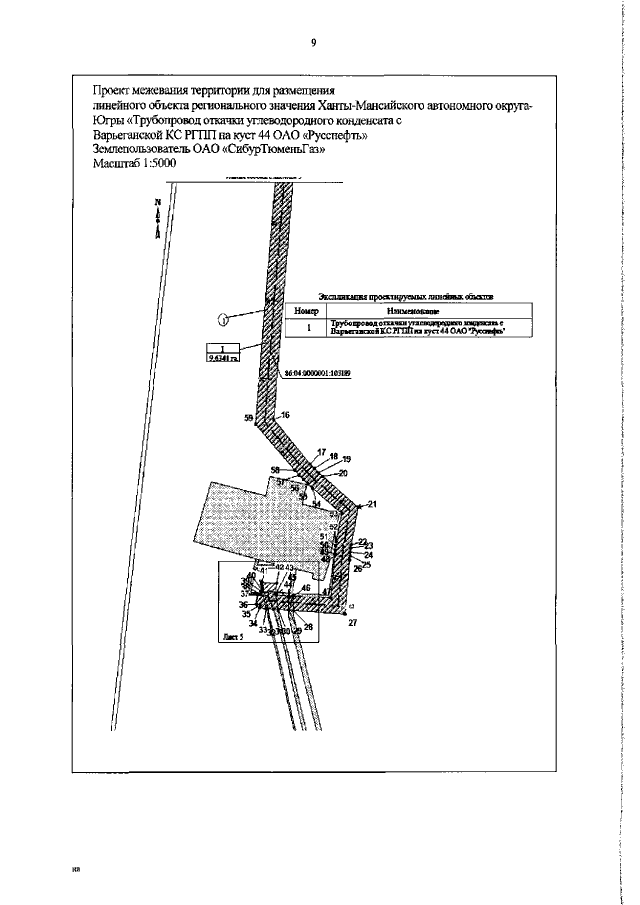
Постановление Правительства Ханты-Мансийского автономного округа - Югры от 27.03.2015 № 79-п
"Об утверждении документации по планировке территории для размещения линейного объекта регионального значения Ханты-Мансийского автономного округа - Югры"
Номер опубликования: 8600201504010003
Дата опубликования: 01.04.2015
Страница №9 из 12:
Увеличить