Распоряжение Комитета по государственному контролю, использованию и охране памятников истории и культуры Санкт-Петербурга от 11.03.2019 № 108-р
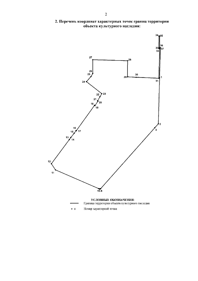
"Об утверждении границ и режима использования территории объекта культурного наследия регионального значения "Николаевская академия Генерального штаба"
"Об утверждении границ и режима использования территории объекта культурного наследия регионального значения "Николаевская академия Генерального штаба"
Номер опубликования: 7801201903200009
Дата опубликования:
20.03.2019
