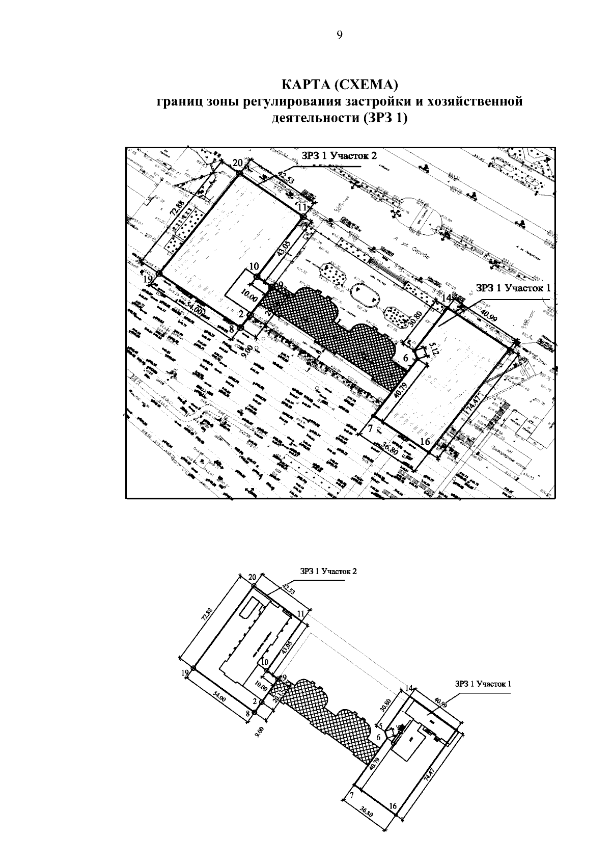
Приказ Государственной службы по охране объектов культурного наследия Забайкальского края от 06.09.2024 № 11-НПА-ЗО
"Об установлении границы зон охраны объекта культурного наследия регионального значения "Железнодорожный вокзал", расположенного по адресу: Забайкальский край, г. Чита, ул. Бутина, 2, и об утверждении требований к градостроительным регламентам в границах территорий данных зон"
(Зарегистрирован 09.09.2024 № 640-75-2024)
"Об установлении границы зон охраны объекта культурного наследия регионального значения "Железнодорожный вокзал", расположенного по адресу: Забайкальский край, г. Чита, ул. Бутина, 2, и об утверждении требований к градостроительным регламентам в границах территорий данных зон"
(Зарегистрирован 09.09.2024 № 640-75-2024)
Номер опубликования: 7501202409100003
Дата опубликования:
10.09.2024
