Приказ Комитета по охране объектов культурного наследия Томской области от 09.12.2019 № 0134/01-07
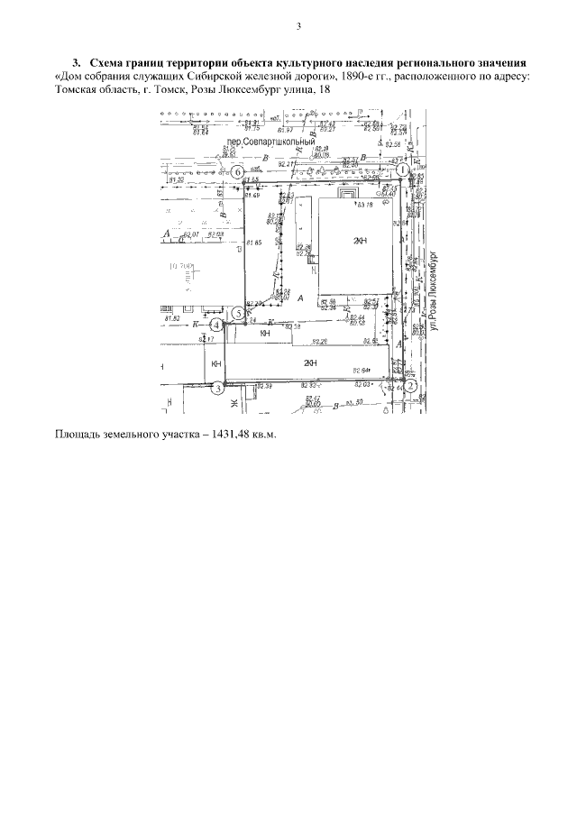
"О включении выявленного объекта культурного наследия "Дом собрания служащих Сибирской железной дороги", 1890-е гг., в единый государственный реестр объектов культурного наследия (памятников истории и культуры) народов Российской Федерации в качестве объекта культурного наследия регионального значения, об утверждении его границ территории и предмета охраны"
"О включении выявленного объекта культурного наследия "Дом собрания служащих Сибирской железной дороги", 1890-е гг., в единый государственный реестр объектов культурного наследия (памятников истории и культуры) народов Российской Федерации в качестве объекта культурного наследия регионального значения, об утверждении его границ территории и предмета охраны"
Номер опубликования: 7001201912100003
Дата опубликования:
10.12.2019
