Постановление Администрации Смоленской области от 20.02.2015 № 58
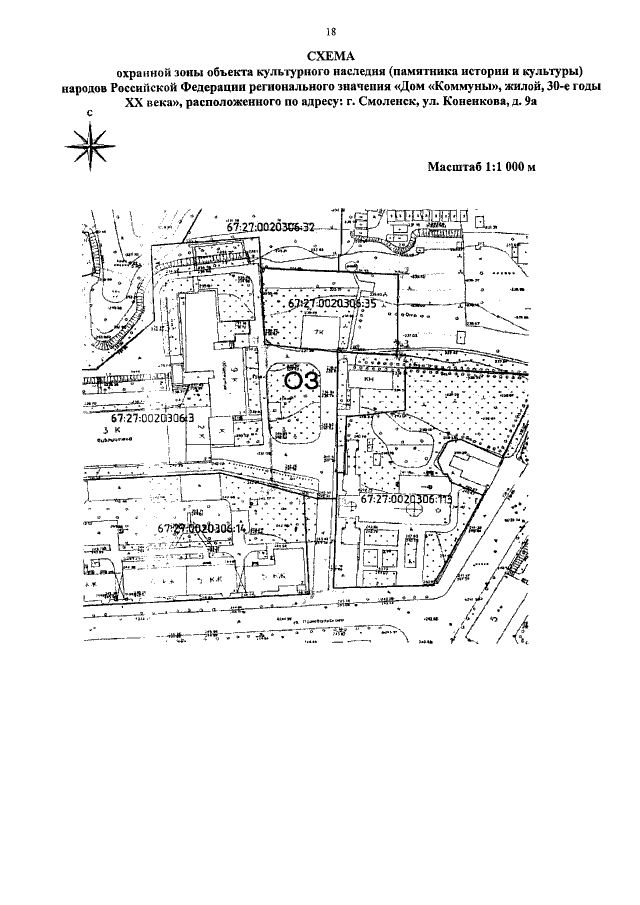
"Об утверждении границ зон охраны объекта культурного наследия (памятника истории и культуры) народов Российской Федерации регионального значения "Дом "Коммуны", жилой, 30-е годы XX века", расположенного по адресу: г. Смоленск, ул. Коненкова, д. 9а, градостроительных регламентов и режимов использования их земель"
"Об утверждении границ зон охраны объекта культурного наследия (памятника истории и культуры) народов Российской Федерации регионального значения "Дом "Коммуны", жилой, 30-е годы XX века", расположенного по адресу: г. Смоленск, ул. Коненкова, д. 9а, градостроительных регламентов и режимов использования их земель"
Номер опубликования: 6700201502260013
Дата опубликования:
26.02.2015
