Официальное опубликование правовых актов
ОФИЦИАЛЬНОЕ ОПУБЛИКОВАНИЕ
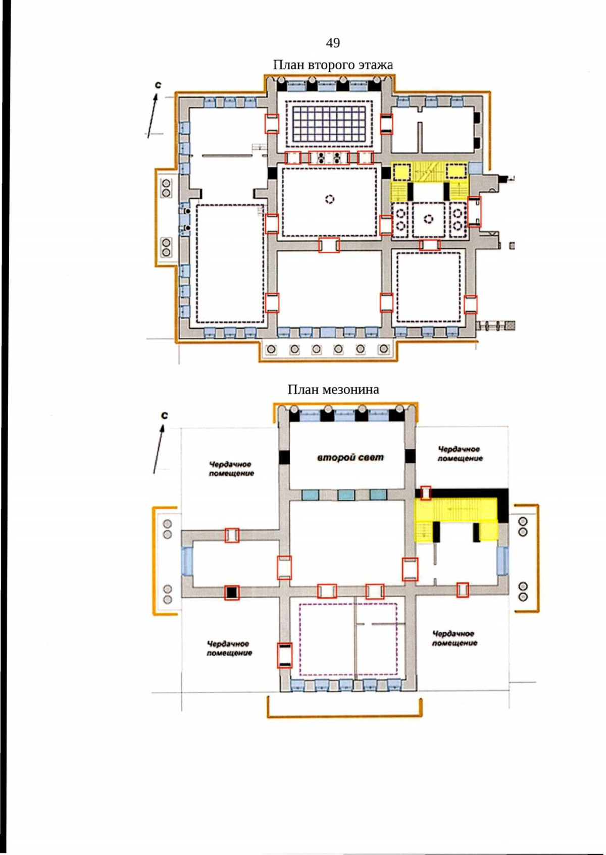
Приказ Управления государственной охраны объектов культурного наследия Свердловской области от 29.01.2026 № 48
"О внесении изменений в приказ Управления государственной охраны объектов культурного наследия Свердловской области от 15.06.2018 № 263 "Об утверждении предмета охраны объекта культурного наследия федерального значения "Дом Харитонова", расположенного по адресу: г. Екатеринбург, ул. Карла Либкнехта, д. 44, включенного в единый государственный реестр объектов культурного наследия (памятников истории и культуры) народов Российской Федерации"
(Зарегистрирован 02.02.2026 № 4236)
Номер опубликования: 6601202602040050
Дата опубликования: 04.02.2026
Страница №49 из 98:
Увеличить