Официальное опубликование правовых актов
ОФИЦИАЛЬНОЕ ОПУБЛИКОВАНИЕ
Постановление Комитета по охране объектов культурного наследия Ростовской области от 16.12.2024 № 2787
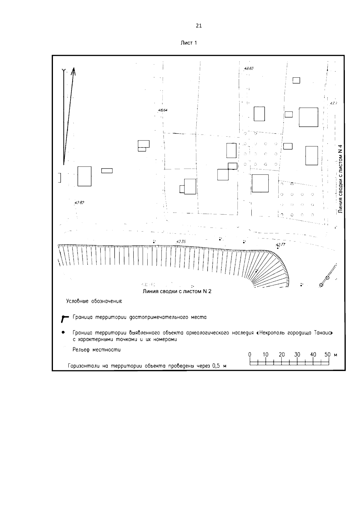
"О внесении изменений в постановление комитета по охране объектов культурного наследия Ростовской области от 16.12.2019 № 20/01-01/1933 "О включении выявленного объекта культурного наследия – достопримечательное место "Историко-культурный комплекс "Танаис", в единый государственный реестр объектов культурного наследия (памятников истории и культуры) народов Российской Федерации, об утверждении предмета охраны, границ территории и об установлении требований к осуществлению деятельности и градостроительным регламентам в границах территории объекта культурного наследия"
(Зарегистрирован 16.12.2024 № 2787)
Номер опубликования: 6101202412180002
Дата опубликования: 18.12.2024
Страница №21 из 516:
Увеличить