Постановление Комитета по охране объектов культурного наследия Ростовской области от 03.12.2024 № 2670
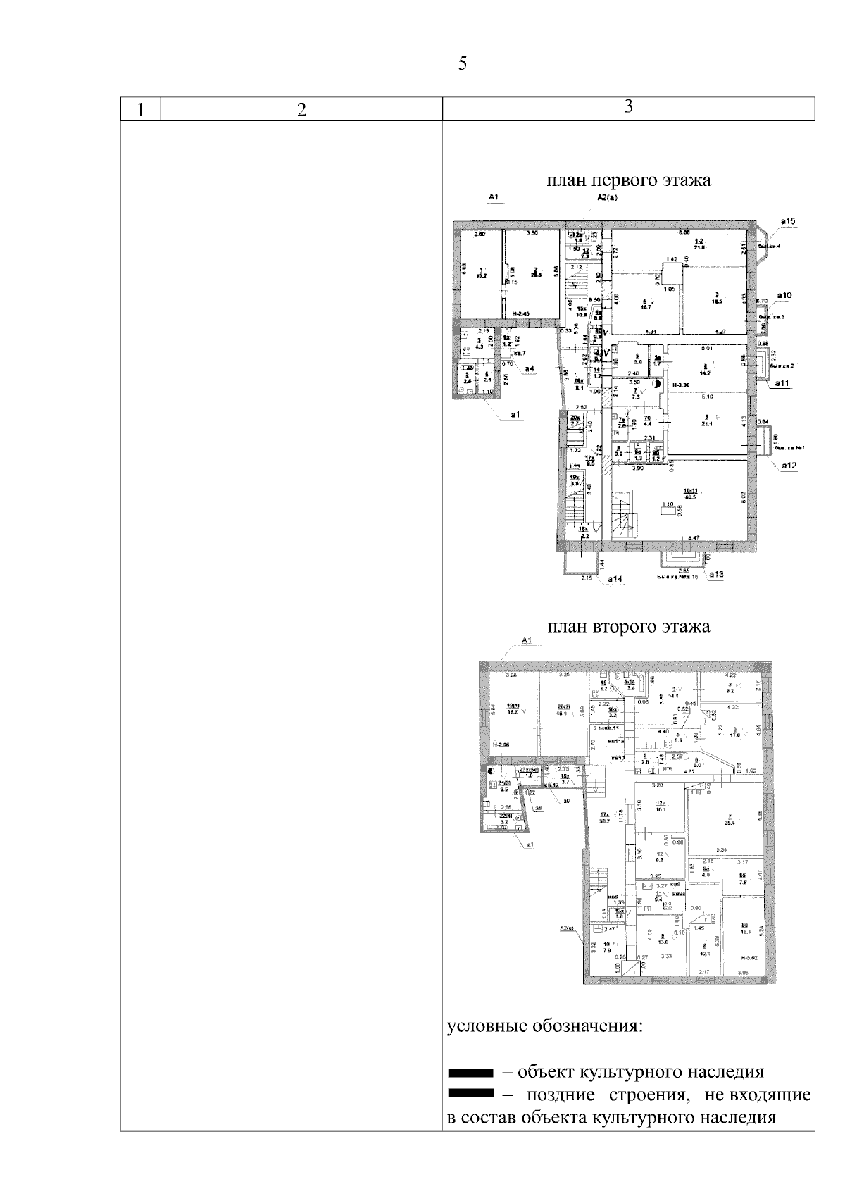
"Об утверждении предмета охраны объекта культурного наследия регионального значения (памятника) "Доходный дом Е.П. Горбачевой", расположенного по адресу: Ростовская область, городской округ город Ростов-на-Дону, город Ростов-на-Дону, улица Социалистическая, дом 92/40"
(Зарегистрирован 03.12.2024 № 2670)
"Об утверждении предмета охраны объекта культурного наследия регионального значения (памятника) "Доходный дом Е.П. Горбачевой", расположенного по адресу: Ростовская область, городской округ город Ростов-на-Дону, город Ростов-на-Дону, улица Социалистическая, дом 92/40"
(Зарегистрирован 03.12.2024 № 2670)
Номер опубликования: 6101202412050018
Дата опубликования:
05.12.2024
