Официальное опубликование правовых актов
ОФИЦИАЛЬНОЕ ОПУБЛИКОВАНИЕ
Постановление Комитета по охране объектов культурного наследия Ростовской области от 03.12.2024 № 2671
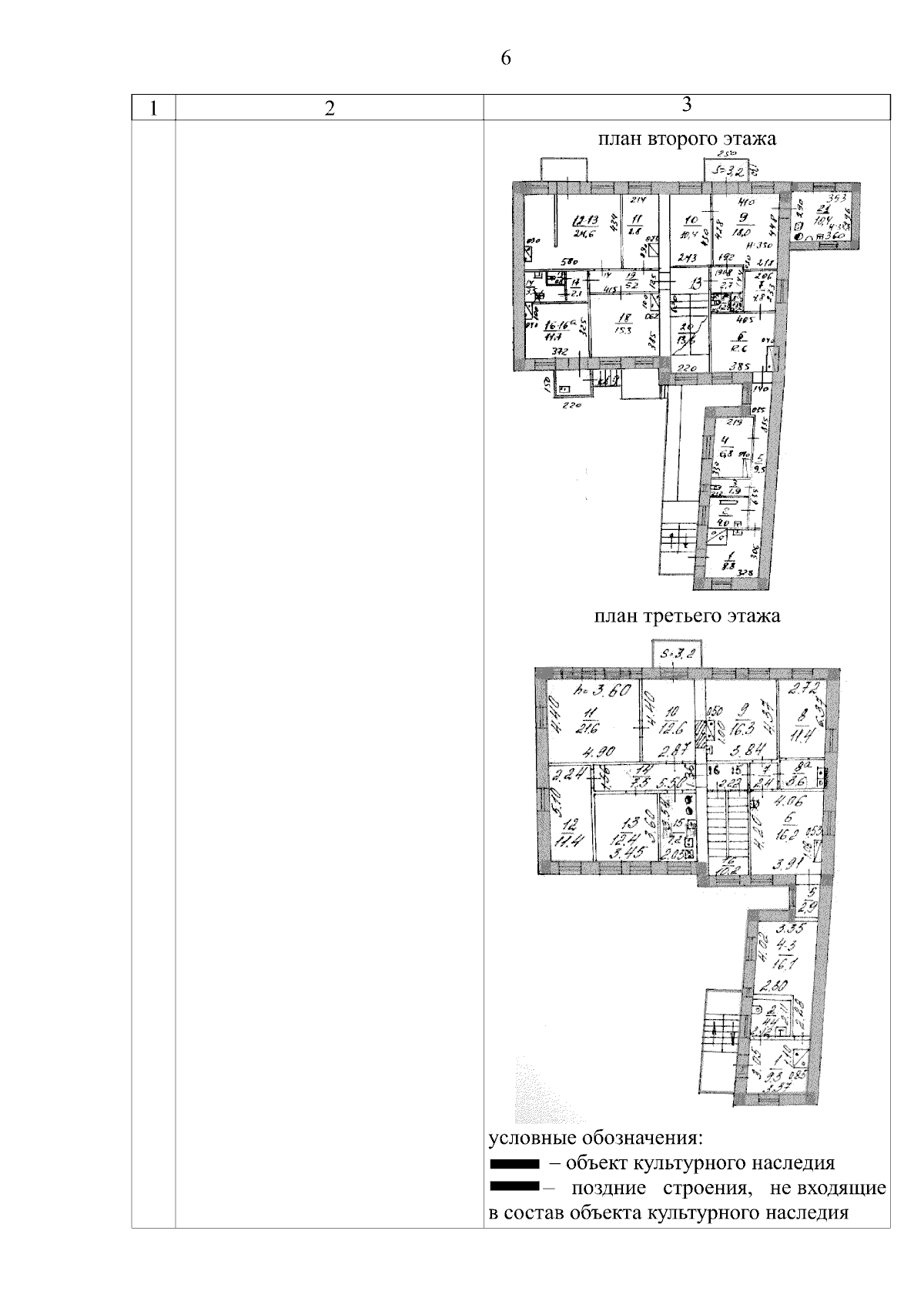
"Об утверждении предмета охраны объекта культурного наследия регионального значения (памятника) "Доходный дом А.А. Гродзинского", расположенного по адресу: Ростовская область, городской округ город Ростов-на-Дону, город Ростов-на-Дону, улица Станиславского, дом 224"
(Зарегистрирован 03.12.2024 № 2671)
Номер опубликования: 6101202412050015
Дата опубликования: 05.12.2024
Страница №6 из 11:
Увеличить