Официальное опубликование правовых актов
ОФИЦИАЛЬНОЕ ОПУБЛИКОВАНИЕ
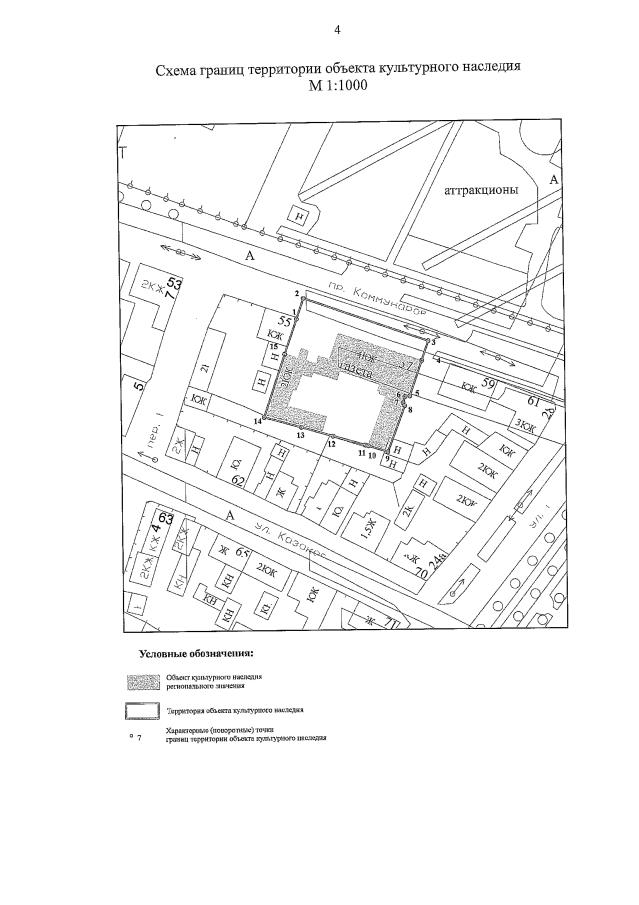
Приказ Инспекции государственной охраны объектов культурного наследия Оренбургской области от 04.05.2022 № 01-08-113
"Об утверждении границ территории объекта культурного наследия регионального значения (вид – памятник) "Городская усадьба Е.И. Иванова" и режима использования данной территории"
Номер опубликования: 5601202205050013
Дата опубликования: 05.05.2022
Страница №4 из 7:
Увеличить