Официальное опубликование правовых актов
ОФИЦИАЛЬНОЕ ОПУБЛИКОВАНИЕ
Приказ Министерства градостроительной деятельности и развития агломераций Нижегородской области от 07.11.2024 № 07-02-03/98
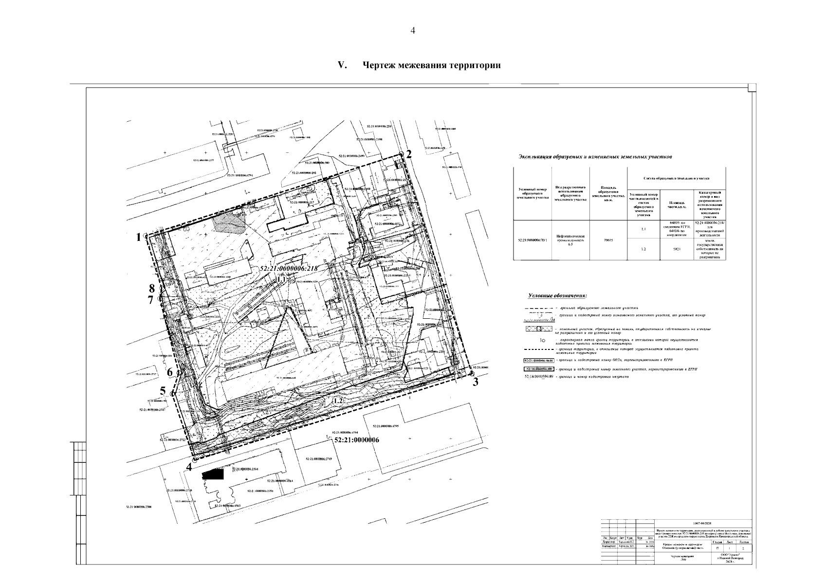
"Об утверждении проекта межевания территории, расположенной в районе земельного участка с кадастровым номером 52:21:0000006:218 по адресу: шоссе Восточное, земельный участок 22Ж в городском округе город Дзержинск Нижегородской области"
(Зарегистрирован 21.11.2024 № 26709-330-007-02-03/98)
Номер опубликования: 5201202411220004
Дата опубликования: 22.11.2024
Страница №6 из 6:
Увеличить