Официальное опубликование правовых актов
ОФИЦИАЛЬНОЕ ОПУБЛИКОВАНИЕ
Приказ Министерства градостроительной деятельности и развития агломераций Нижегородской области от 27.05.2024 № 07-02-03/43
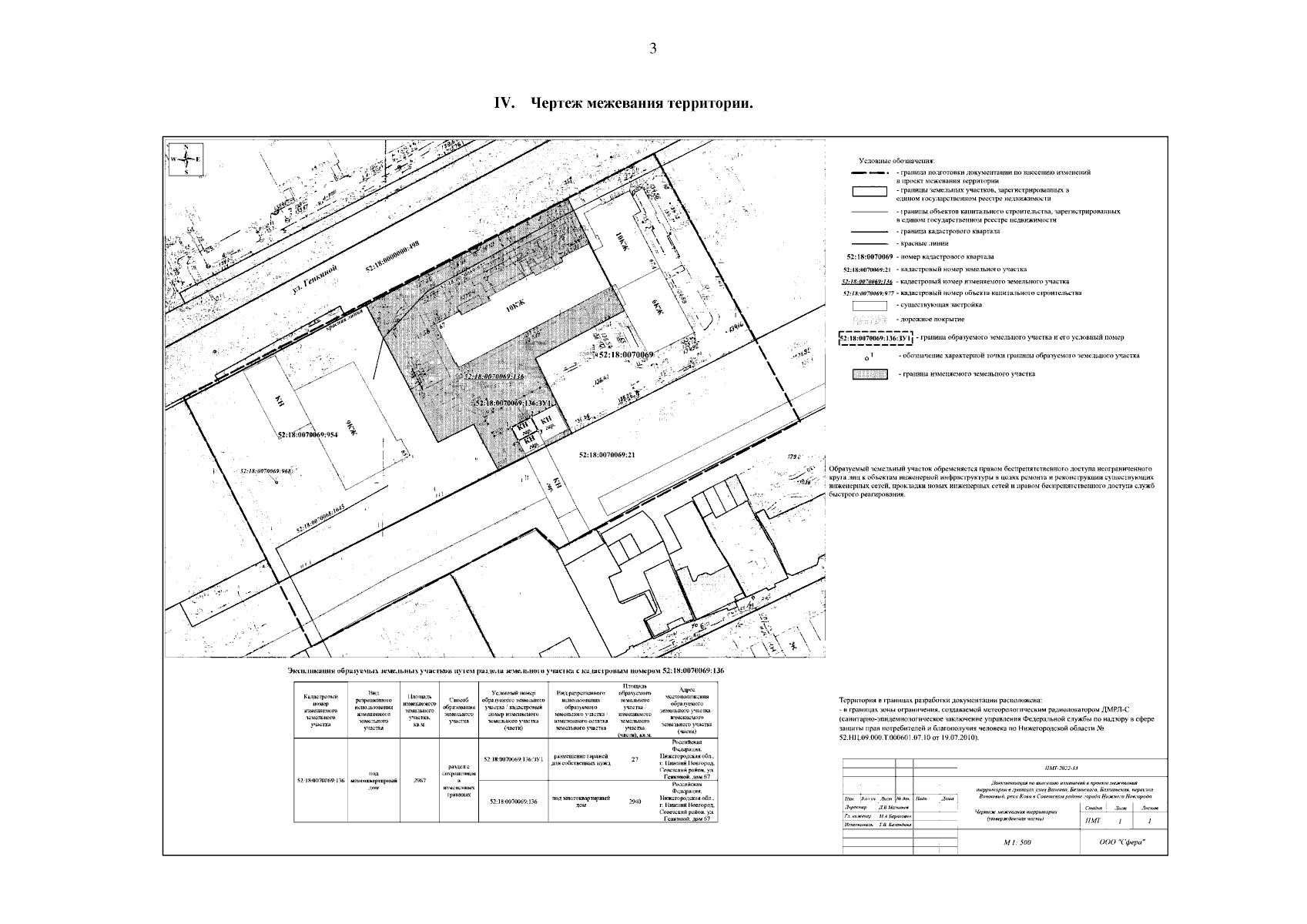
"Об утверждении документации по внесению изменений в проект межевания территории в границах улиц Ванеева, Белинского, Балхашская, переулка Вишневый, реки Кова в Советском районе города Нижнего Новгорода"
(Зарегистрирован 26.06.2024 № 25770-330-007-02-03/43)
Номер опубликования: 5201202406280020
Дата опубликования: 28.06.2024
Страница №5 из 5:
Увеличить