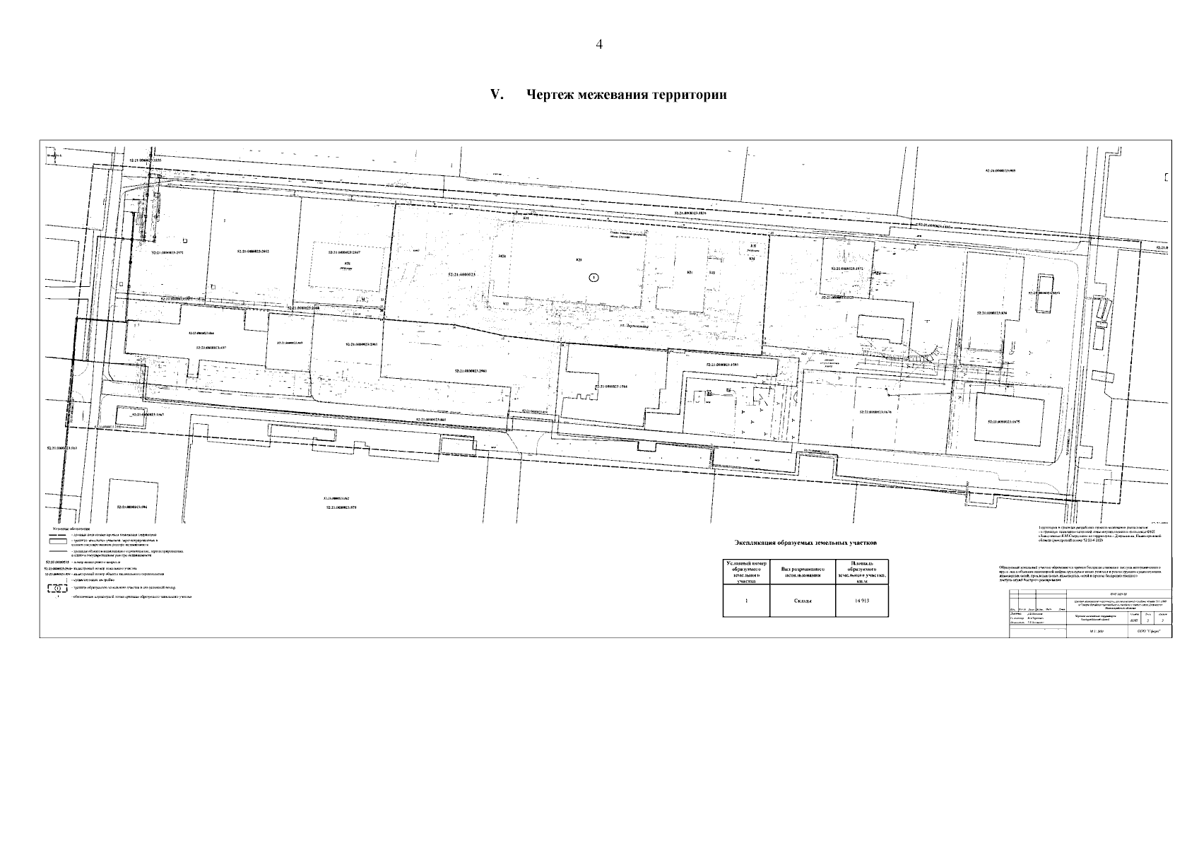
Приказ Министерства градостроительной деятельности и развития агломераций Нижегородской области от 13.02.2024 № 07-02-03/11
"Об утверждении проекта межевания территории, расположенной в районе здания 135/1009 в Северо-Западном промрайоне в городском округе город Дзержинск Нижегородской области"
(Зарегистрирован 01.04.2024 № 25315-330-007-02-03/11)
"Об утверждении проекта межевания территории, расположенной в районе здания 135/1009 в Северо-Западном промрайоне в городском округе город Дзержинск Нижегородской области"
(Зарегистрирован 01.04.2024 № 25315-330-007-02-03/11)
Номер опубликования: 5201202404030005
Дата опубликования:
03.04.2024
