Официальное опубликование правовых актов
ОФИЦИАЛЬНОЕ ОПУБЛИКОВАНИЕ
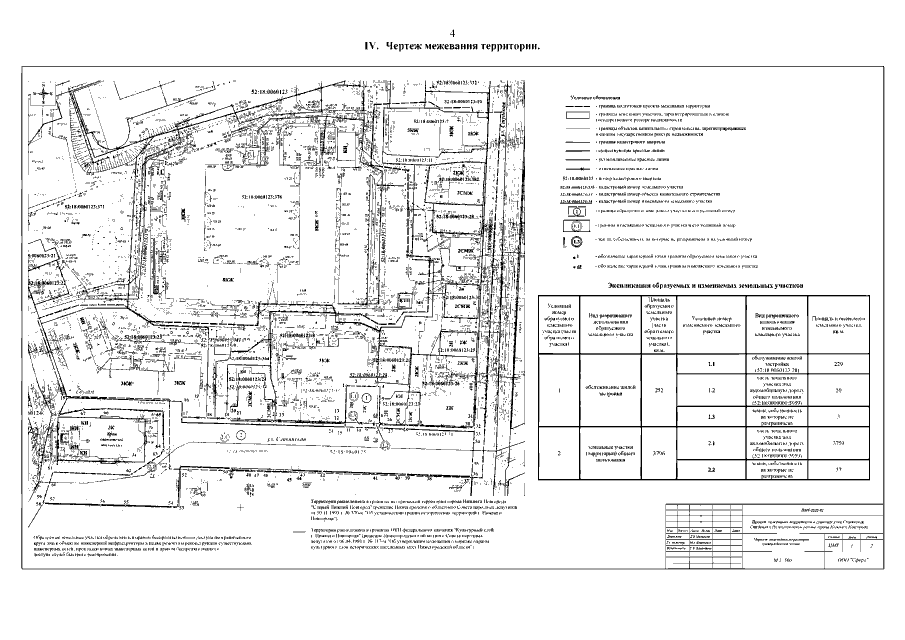
Приказ Министерства градостроительной деятельности и развития агломераций Нижегородской области от 21.05.2021 № 07-02-03/30 "Об утверждении проекта межевания территории в границах улиц Славянская, Студеная в Нижегородском районе города Нижнего Новгорода"
(Зарегистрирован 15.06.2021 № 17352-330-007-02-03/30)
Номер опубликования: 5201202106170002
Дата опубликования: 17.06.2021
Страница №6 из 7:
Увеличить