Официальное опубликование правовых актов
ОФИЦИАЛЬНОЕ ОПУБЛИКОВАНИЕ
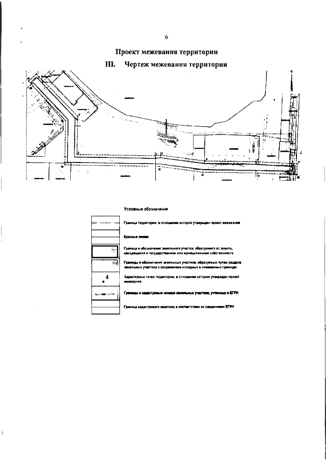
Приказ Министерства градостроительной деятельности и развития агломераций Нижегородской области от 10.02.2021 № 06-01-03/8 "Об утверждении проекта планировки и межевания территории, расположенной в микрорайоне "Комсомольский" г. Дзержинска Нижегородской области"
(Зарегистрирован 10.03.2021 № 16895-330-006-01-03/8)
Номер опубликования: 5201202103120015
Дата опубликования: 12.03.2021
Страница №8 из 11:
Увеличить