Официальное опубликование правовых актов
ОФИЦИАЛЬНОЕ ОПУБЛИКОВАНИЕ
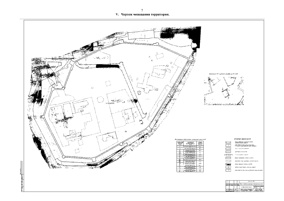
Приказ Министерства градостроительной деятельности и развития агломераций Нижегородской области от 22.12.2020 № 07-02-03/129 "Об утверждении проекта межевания территории Нижегородского Кремля"
(Зарегистрирован 21.01.2021 № 16695-330-007-02-03/129)
Номер опубликования: 5201202101250011
Дата опубликования: 25.01.2021
Страница №8 из 10:
Увеличить