Официальное опубликование правовых актов
ОФИЦИАЛЬНОЕ ОПУБЛИКОВАНИЕ
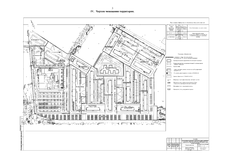
Приказ Министерства градостроительной деятельности и развития агломераций Нижегородской области от 22.12.2020 № 07-02-03/130 "Об утверждении документации по внесению изменений в проект планировки и межевания территории по проспекту Кораблестроителей, в районе домов №42, 44, 45/1, в Сормовском районе города Нижнего Новгорода"
(Зарегистрирован 21.01.2021 № 16704-330-007-02-03/130)
Номер опубликования: 5201202101250001
Дата опубликования: 25.01.2021
Страница №5 из 5:
Увеличить