Официальное опубликование правовых актов
ОФИЦИАЛЬНОЕ ОПУБЛИКОВАНИЕ
Постановление Правительства Нижегородской области от 31.05.2017 № 359
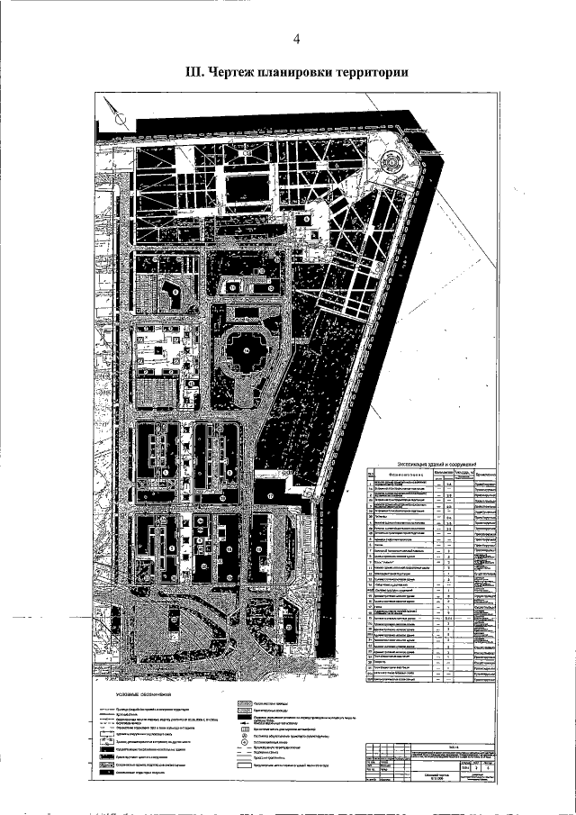
"Об утверждении документации по внесению изменений в документацию по планировке территории с детализацией застройки и парковой зоны в границах улиц Керченская, Совнаркомовская, набережная рек Волга и Ока, на период проведения чемпионата мира по футболу 2018 года"
Номер опубликования: 5200201706020013
Дата опубликования: 02.06.2017
Страница №6 из 33:
Увеличить