Официальное опубликование правовых актов
ОФИЦИАЛЬНОЕ ОПУБЛИКОВАНИЕ
Распоряжение Министерства культуры Мурманской области от 29.09.2020 № 59
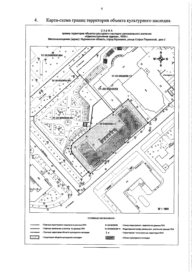
"Об утверждении границ территории и режима использования территории объекта культурного наследия регионального значения «Административное здание», 1939 г., местонахождение (адрес): Мурманская область, город Мурманск, улица Софьи Перовской, дом 2"
Номер опубликования: 5101202010020006
Дата опубликования: 02.10.2020
Страница №6 из 8:
Увеличить