Официальное опубликование правовых актов
ОФИЦИАЛЬНОЕ ОПУБЛИКОВАНИЕ
Постановление Правительства Московской области от 25.08.2023 № 675-ПП
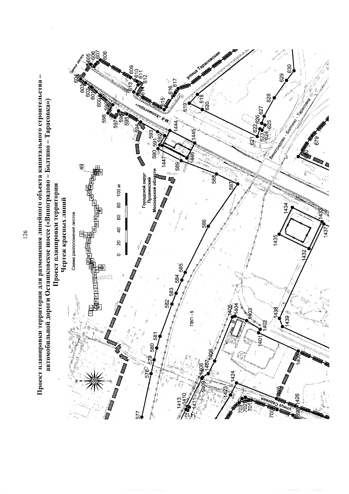
"Об утверждении изменений в проект планировки территории для размещения линейного объекта капитального строительства — автомобильной дороги Осташковское шоссе ("Виноградово — Болтино — Тарасовка")"
Номер опубликования: 5000202308290001
Дата опубликования: 29.08.2023
Страница №128 из 915:
Увеличить