Официальное опубликование правовых актов
ОФИЦИАЛЬНОЕ ОПУБЛИКОВАНИЕ
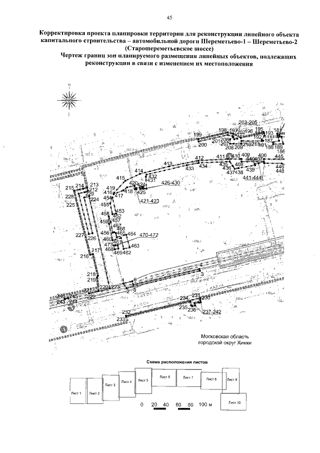
Постановление Правительства Московской области от 16.05.2022 № 477/15
"Об утверждении изменений в проект планировки территории для реконструкции линейного объекта капитального строительства – автомобильной дороги Шереметьево-1 – Шереметьево-2 (Старошереметьевское шоссе)"
Номер опубликования: 5000202205160005
Дата опубликования: 16.05.2022
Страница №47 из 94:
Увеличить