Официальное опубликование правовых актов
ОФИЦИАЛЬНОЕ ОПУБЛИКОВАНИЕ
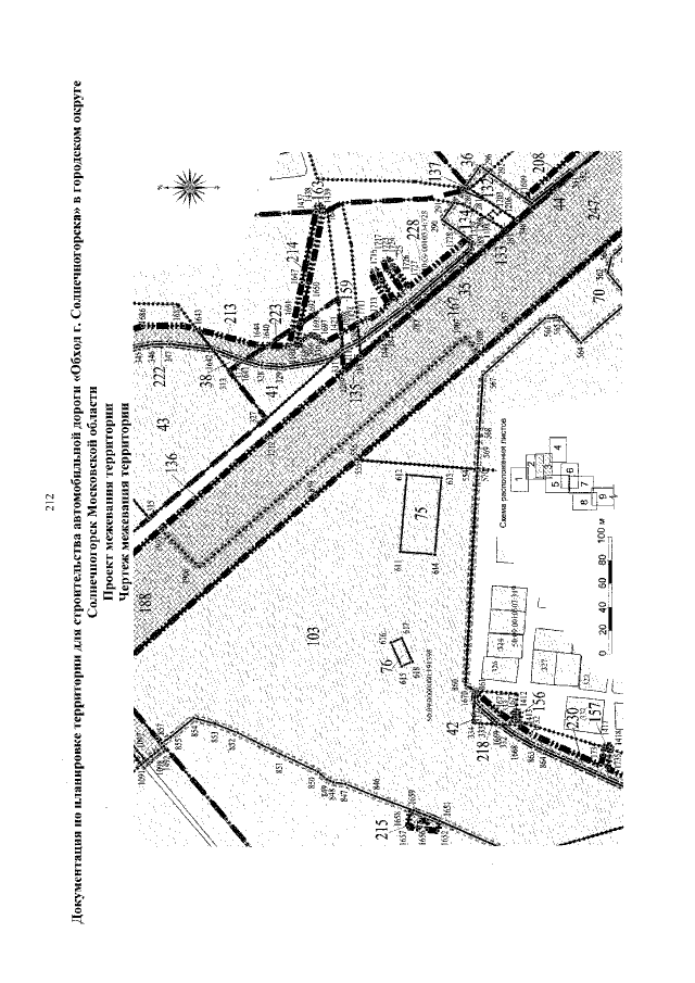
Постановление Правительства Московской области от 17.12.2021 № 1375/43
"Об утверждении документации по планировке территории для строительства автомобильной дороги "Обход г. Солнечногорска" в городском округе Солнечногорск Московской области"
Номер опубликования: 5000202112200007
Дата опубликования: 20.12.2021
Страница №214 из 235:
Увеличить