Постановление Правительства Московской области от 17.12.2021 № 1365/43
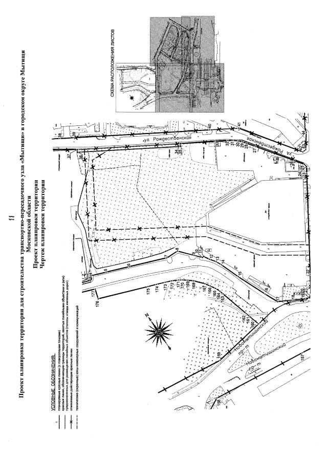
"Об утверждении изменений в проект планировки территории для строительства транспортно-пересадочного узла "Мытищи" в городском округе Мытищи Московской области"
"Об утверждении изменений в проект планировки территории для строительства транспортно-пересадочного узла "Мытищи" в городском округе Мытищи Московской области"
Номер опубликования: 5000202112200003
Дата опубликования:
20.12.2021
