Приказ министерства строительства и архитектуры Липецкой области от 13.03.2025 № 103
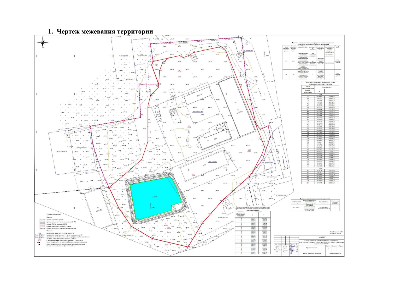
"Об утверждении проекта межевания территории в районе улицы Лесная в селе Троицкое Липецкого муниципального округа, в части кадастрового квартала 48:13:1250234"
"Об утверждении проекта межевания территории в районе улицы Лесная в селе Троицкое Липецкого муниципального округа, в части кадастрового квартала 48:13:1250234"
Номер опубликования: 4801202503180041
Дата опубликования:
18.03.2025
