Официальное опубликование правовых актов
ОФИЦИАЛЬНОЕ ОПУБЛИКОВАНИЕ
Приказ Комитета по культуре Ленинградской области от 21.05.2020 № 01-03/20-153
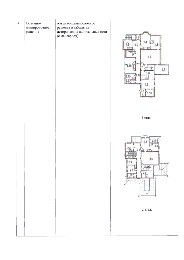
"Об утверждении границ территории и предмета охраны объекта культурного наследия федерального значения "Дом, где жил и работал выдающийся советский энергетик Графтио Генрих Осипович, руководивший строительством Волховской ГЭС", расположенного по адресу: Ленинградская область, г. Волхов, Октябрьская набережная, дом 27, и признании утратившим силу приказа комитета по культуре Ленинградской области от 27 ноября 2019 года № 01-03/19-488"
Номер опубликования: 4701202005260005
Дата опубликования: 26.05.2020
Страница №10 из 33:
Увеличить