Официальное опубликование правовых актов
ОФИЦИАЛЬНОЕ ОПУБЛИКОВАНИЕ
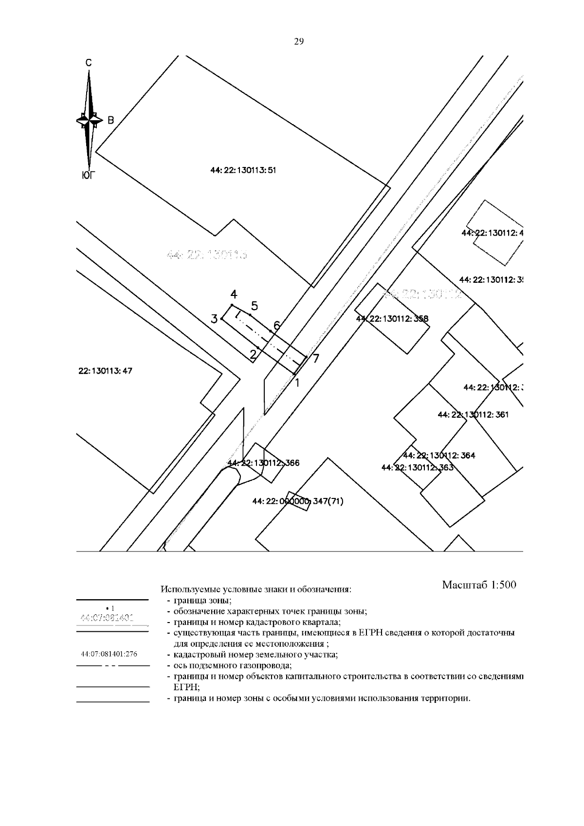
Приказ Департамента имущественных и земельных отношений Костромской области от 16.02.2024 № 34-од
"Об установлении охранных зон газопроводов газораспределительных сетей"
(Зарегистрирован 21.02.2024 № 89)
Номер опубликования: 4401202402220006
Дата опубликования: 22.02.2024
Страница №31 из 43:
Увеличить