Официальное опубликование правовых актов
ОФИЦИАЛЬНОЕ ОПУБЛИКОВАНИЕ
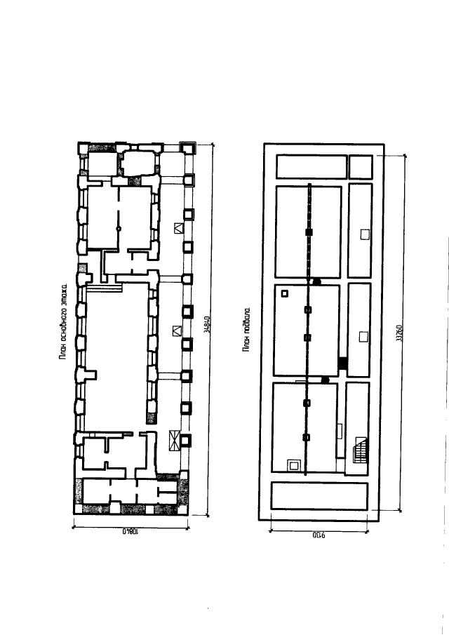
Приказ Инспекции по охране объектов культурного наследия Костромской области от 05.02.2020 № 17
"Об утверждении предмета охраны объекта культурного наследия федерального значения "Ансамбль Торговых рядов и других зданий центральной части города: Рыбные ряды, корпус 4", ХVIII-XIX вв.‚ расположенного по адресу: Костромская область, г. Кострома"
Номер опубликования: 4401202002070003
Дата опубликования: 07.02.2020
Страница №5 из 9:
Увеличить