Официальное опубликование правовых актов
ОФИЦИАЛЬНОЕ ОПУБЛИКОВАНИЕ
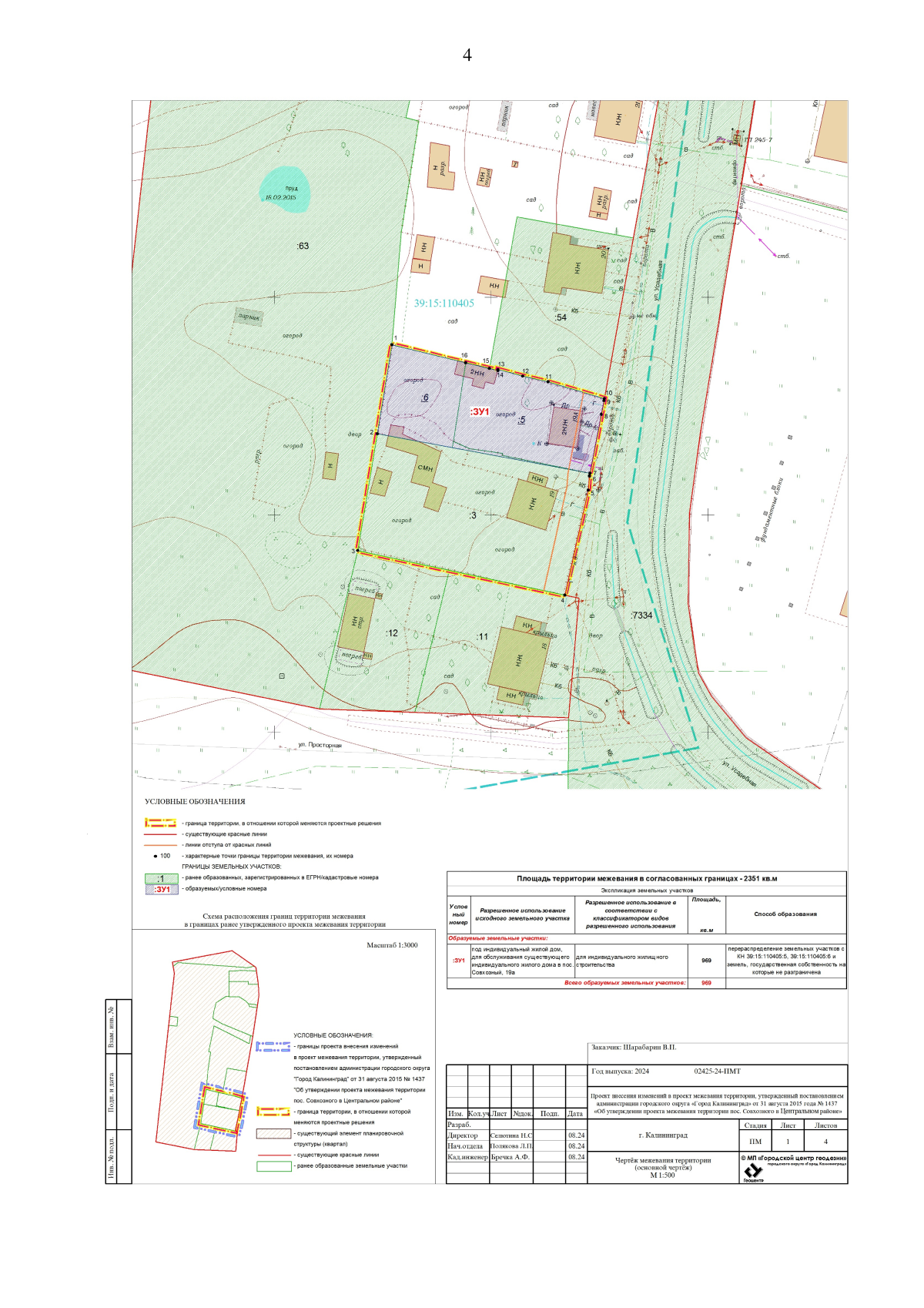
Приказ Министерства градостроительной политики Калининградской области от 26.09.2024 № 330
"Об утверждении проекта внесения изменений в проект межевания территории, утвержденный постановлением администрации городского округа "Город Калининград" от 31 августа 2015 года № 1437"
(Зарегистрирован 26.09.2024 № ГР/771/2024)
Номер опубликования: 3901202409270002
Дата опубликования: 27.09.2024
Страница №4 из 7: