Официальное опубликование правовых актов
ОФИЦИАЛЬНОЕ ОПУБЛИКОВАНИЕ
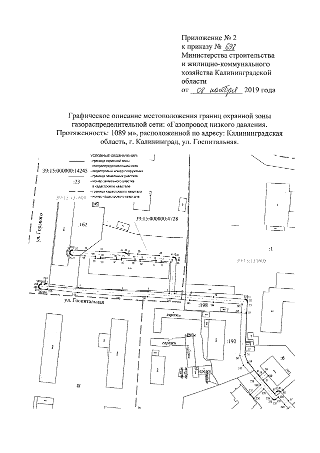
Приказ Министерства строительства и жилищно-коммунального хозяйства Калининградской области от 08.11.2019 № 698
"Об утверждении границ охранных зон газораспределительных сетей и наложении ограничений (обременений) на входящие в них земельные участки"
Номер опубликования: 3901201911150004
Дата опубликования: 15.11.2019
Страница №13 из 14:
Увеличить