Официальное опубликование правовых актов
ОФИЦИАЛЬНОЕ ОПУБЛИКОВАНИЕ
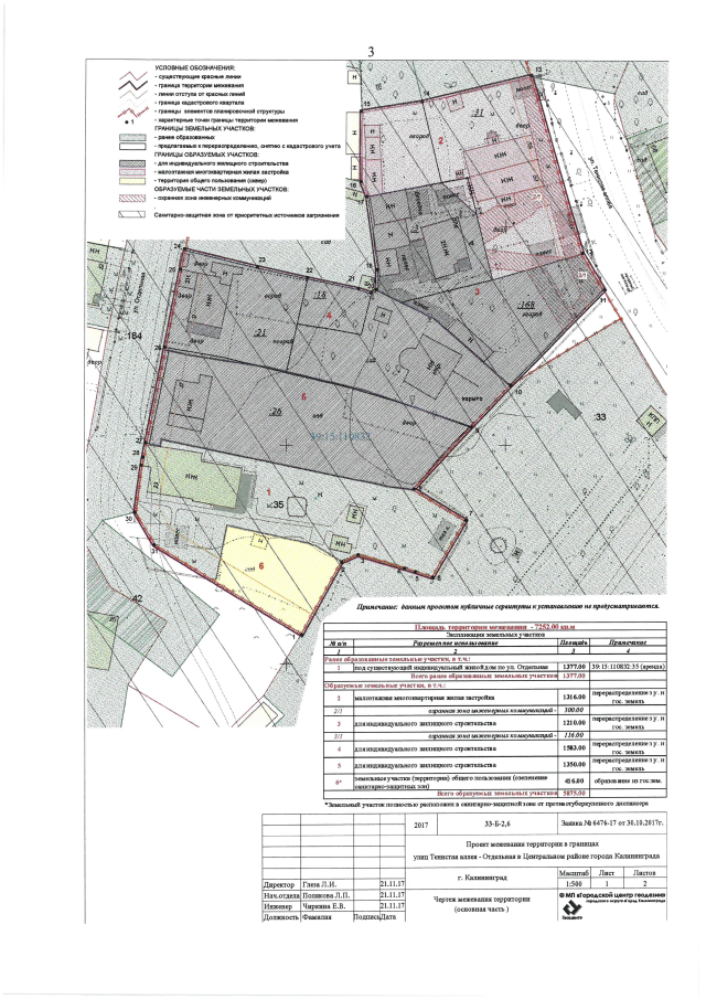
Приказ Агентства по архитектуре, градостроению и перспективному развитию Калининградской области от 21.03.2019 № 106
"Об утверждении проекта межевания территории в границах улиц Тенистая аллея – Отдельная в Центральном районе города Калининград"
Номер опубликования: 3901201903290001
Дата опубликования: 29.03.2019
Страница №5 из 9:
Увеличить