Приказ службы по охране объектов культурного наследия Иркутской области от 17.10.2019 № 332-спр
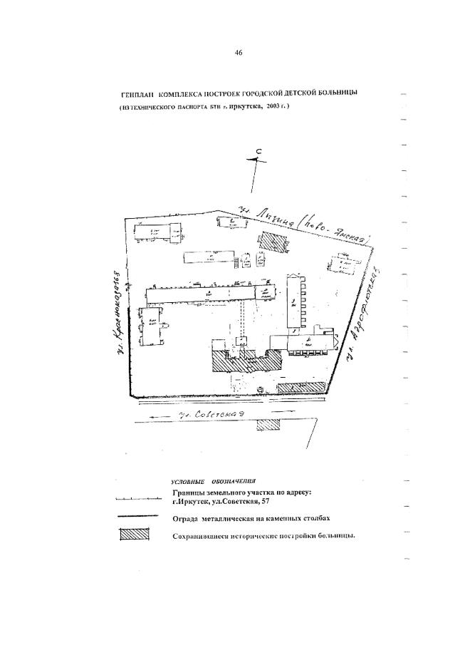
"Об утверждении охранного обязательства собственника или иного законного владельца объекта культурного наследия регионального значения "Комплекс построек Ивано - Матрененской детской больницы"
"Об утверждении охранного обязательства собственника или иного законного владельца объекта культурного наследия регионального значения "Комплекс построек Ивано - Матрененской детской больницы"
Номер опубликования: 3801201910180005
Дата опубликования:
18.10.2019
