Официальное опубликование правовых актов
ОФИЦИАЛЬНОЕ ОПУБЛИКОВАНИЕ
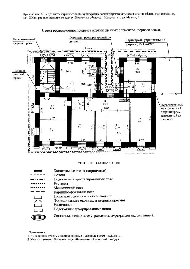
Приказ службы по охране объектов культурного наследия Иркутской области от 03.07.2019 № 154-спр
"Об утверждении предмета охраны объекта культурного наследия"
Номер опубликования: 3801201907050019
Дата опубликования: 05.07.2019
Страница №5 из 5:
Увеличить