Официальное опубликование правовых актов
ОФИЦИАЛЬНОЕ ОПУБЛИКОВАНИЕ
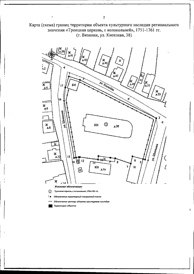
Постановление Инспекции по охране объектов культурного наследия Владимирской области от 14.06.2018 № 11
"Об утверждении границ и режима использования территорий объектов культурного наследия, расположенных в городе Вязники"
Номер опубликования: 3301201806250004
Дата опубликования: 25.06.2018
Страница №22 из 29:
Увеличить