Официальное опубликование правовых актов
ОФИЦИАЛЬНОЕ ОПУБЛИКОВАНИЕ
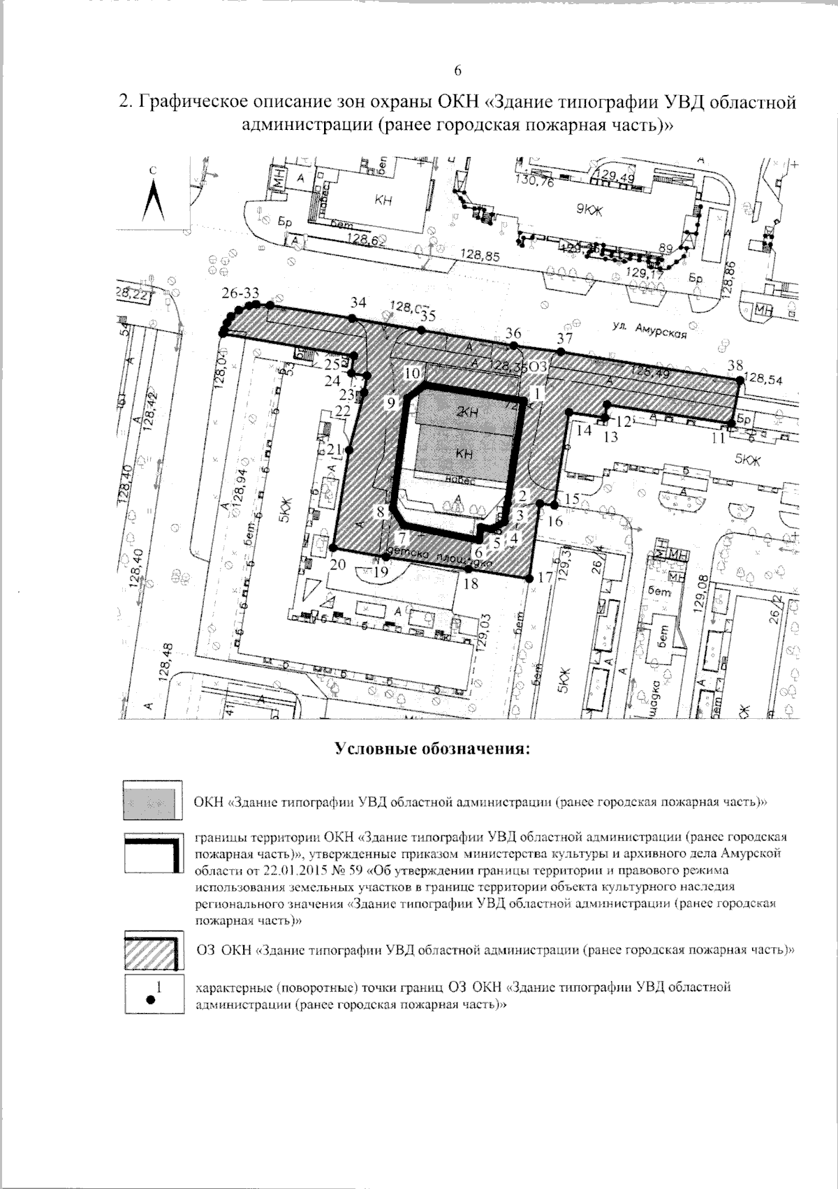
Постановление Правительства Амурской области от 05.02.2026 № 58
"Об установлении зон охраны объекта культурного наследия регионального значения "Здание типографии УВД областной администрации (ранее городская пожарная часть)", кон. XIX в. (Амурская область, г. Благовещенск, ул. Амурская, 72) и утверждении требований к градостроительным регламентам в границах территорий данных зон"
Номер опубликования: 2800202602060010
Дата опубликования: 06.02.2026
Страница №7 из 7:
Увеличить