Официальное опубликование правовых актов
ОФИЦИАЛЬНОЕ ОПУБЛИКОВАНИЕ
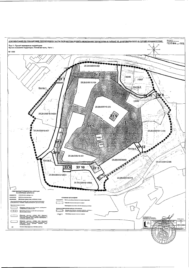
Постановление Администрации города Владивостока Приморского края от 28.05.2018 № 1668
"Об утверждении документации по планировке территории в части проекта межевания территории в районе ул. Добровольского в городе Владивостоке (тестовое опубликование)"
Номер опубликования: 2502201806040003
Дата опубликования: 04.06.2018
Страница №24 из 25:
Увеличить