Официальное опубликование правовых актов
ОФИЦИАЛЬНОЕ ОПУБЛИКОВАНИЕ
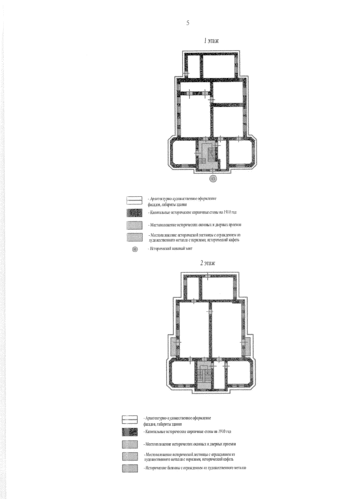
Приказ Инспекции по охране объектов культурного наследия Приморского края от 21.11.2024 № 261
"Об утверждении предмета охраны объекта культурного наследия регионального значения "Жилой дом", начало ХХ в., расположенного по адресу: Приморский край, г. Владивосток, переулок Трудовой, 1-А"
(Зарегистрирован 21.11.2024 № 1735)
Номер опубликования: 2501202411220003
Дата опубликования: 22.11.2024
Страница №5 из 9:
Увеличить