Официальное опубликование правовых актов
ОФИЦИАЛЬНОЕ ОПУБЛИКОВАНИЕ
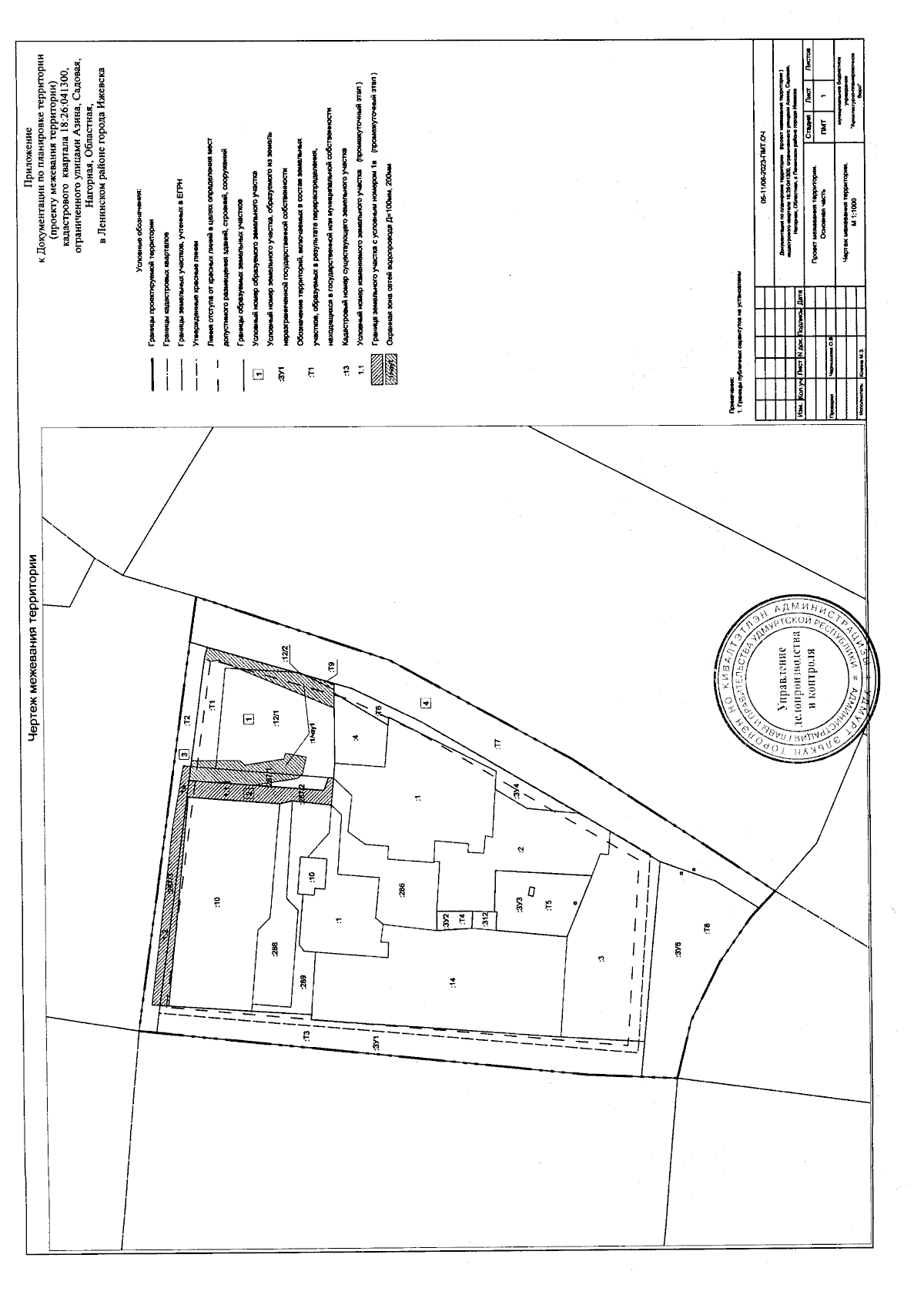
Постановление Правительства Удмуртской Республики от 22.08.2024 № 453
"Об утверждении Документации по планировке территории (проекта межевания территории) кадастрового квартала 18:26:041300, ограниченного улицами Азина, Садовая, Нагорная, Областная, в Ленинском районе города Ижевска"
Номер опубликования: 1800202408310006
Дата опубликования: 31.08.2024
Страница №8 из 8:
Увеличить