Официальное опубликование правовых актов
ОФИЦИАЛЬНОЕ ОПУБЛИКОВАНИЕ
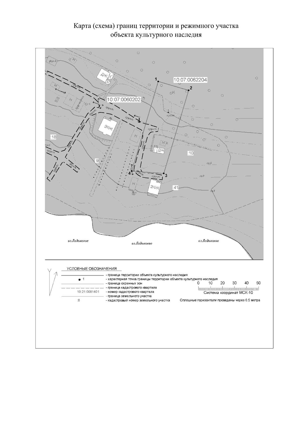
Приказ Управления по охране объектов культурного наследия Республики Карелия от 12.04.2024 № 132/УОКН-П
"Об утверждении границ территории объекта культурного наследия регионального значения - достопримечательное место "Памятное место, связанное с пребыванием летом 1917 г. в усадьбе Реландеров выдающегося деятеля культуры Н.К. Рериха", расположенного по адресу: Республика Карелия, Сортавальский р-н, п. Вуорио (берег залива Юхинлахти), установлении требований к осуществлению деятельности и требований к градостроительным регламентам в границах его территории"
(Зарегистрирован 12.04.2024 № 311)
Номер опубликования: 1001202404160001
Дата опубликования: 16.04.2024
Страница №7 из 7:
Увеличить