Приказ Управления по охране объектов культурного наследия Республики Карелия от 08.08.2022 № 365
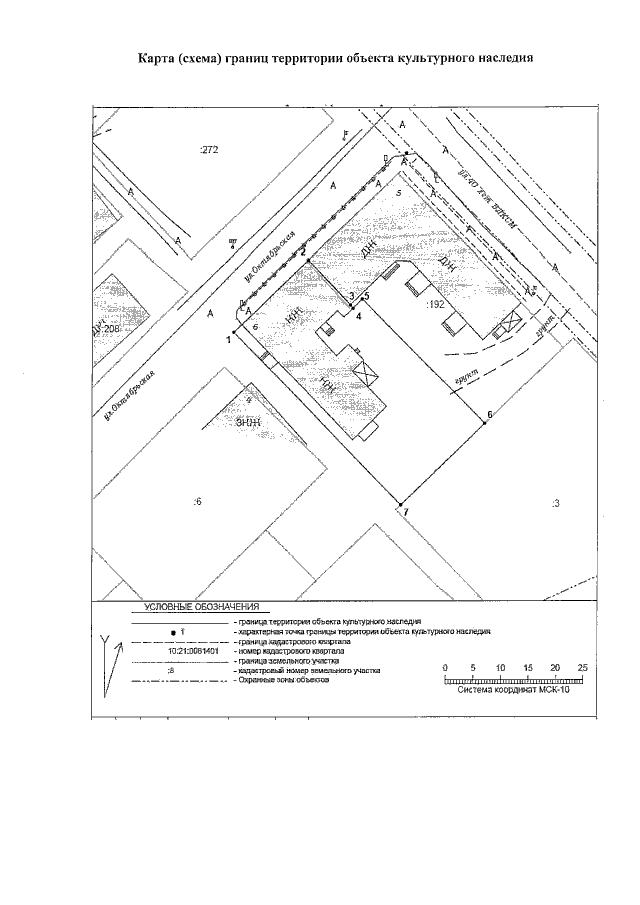
"О включении выявленного объекта культурного наследия в единый государственный реестр объектов культурного наследия (памятников истории и культуры) народов Российской Федерации, утверждении предмета охраны и утверждении границ его территории"
"О включении выявленного объекта культурного наследия в единый государственный реестр объектов культурного наследия (памятников истории и культуры) народов Российской Федерации, утверждении предмета охраны и утверждении границ его территории"
Номер опубликования: 1001202208080004
Дата опубликования:
08.08.2022
