Официальное опубликование правовых актов
ОФИЦИАЛЬНОЕ ОПУБЛИКОВАНИЕ
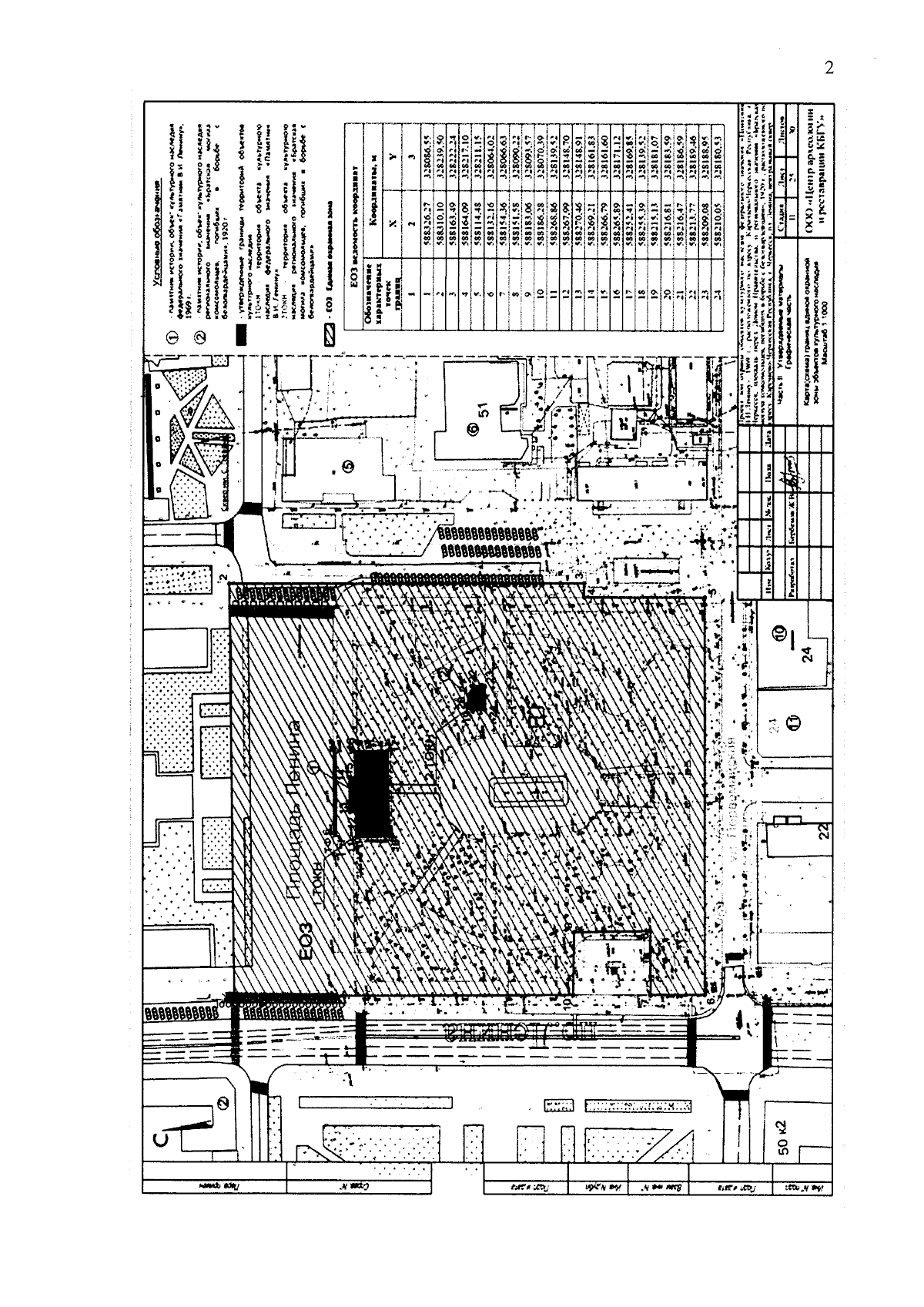
Постановление Правительства Карачаево-Черкесской Республики от 28.12.2023 № 405
"Об установлении объединенной зоны охраны объектов культурного наследия федерального значения "Памятник В.И. Ленину" и регионального значения "Братская могила комсомольцев, погибших в борьбе с белогвардейцами"
Номер опубликования: 0900202312290009
Дата опубликования: 29.12.2023
Страница №4 из 9:
Увеличить