Приказ Управления по государственной охране объектов культурного наследия Республики Башкортостан от 27.05.2024 № 269
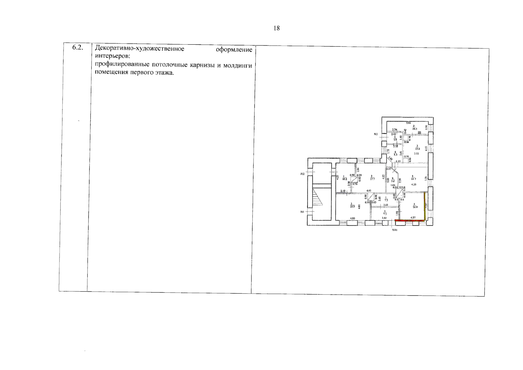
"Об утверждении предмета охраны объекта культурного наследия (памятника истории и культуры) регионального значения "Старообрядческие дома", памятник, 70-е годы XIX в., расположенного по адресу: Республика Башкортостан, г. Уфа, ул. Коммунистическая, 63/1"
(Зарегистрирован 26.06.2024 № 22312)
"Об утверждении предмета охраны объекта культурного наследия (памятника истории и культуры) регионального значения "Старообрядческие дома", памятник, 70-е годы XIX в., расположенного по адресу: Республика Башкортостан, г. Уфа, ул. Коммунистическая, 63/1"
(Зарегистрирован 26.06.2024 № 22312)
Номер опубликования: 0201202407040002
Дата опубликования:
04.07.2024
