Официальное опубликование правовых актов
ОФИЦИАЛЬНОЕ ОПУБЛИКОВАНИЕ
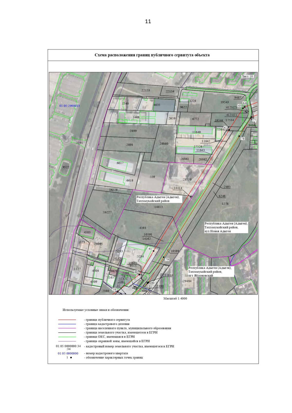
Приказ Комитета Республики Адыгея по имущественным отношениям от 03.05.2024 № 156-ОД
"Об установлении публичного сервитута в целях эксплуатации объектов электросетевого хозяйства"
(Зарегистрирован 23.05.2024 № 24-200)
Номер опубликования: 0101202405290008
Дата опубликования: 29.05.2024
Страница №35 из 39:
Увеличить