Официальное опубликование правовых актов
ОФИЦИАЛЬНОЕ ОПУБЛИКОВАНИЕ
Приказ Министерства культуры Российской Федерации от 19.03.2024 № 494
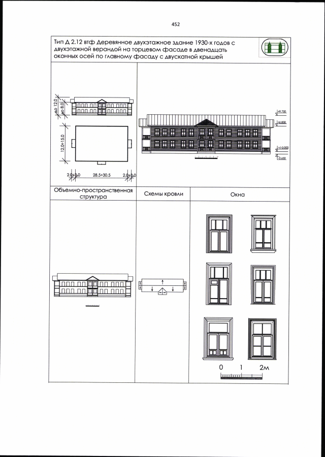
"О внесении изменения в перечень исторических поселений, имеющих особое значение для истории и культуры Российской Федерации, утвержденный приказом Министерства культуры Российской Федерации от 04.04.2023 № 839, и утверждении границ территории, предмета охраны и требований к градостроительным регламентам в границах территории исторического поселения федерального значения город Вологда Вологодской области"
(Зарегистрирован 01.11.2024 № 79992)
Номер опубликования: 0001202411050007
Дата опубликования: 05.11.2024
Страница №452 из 524:
Увеличить