Приказ Министерства культуры Российской Федерации от 24.04.2018 № 560
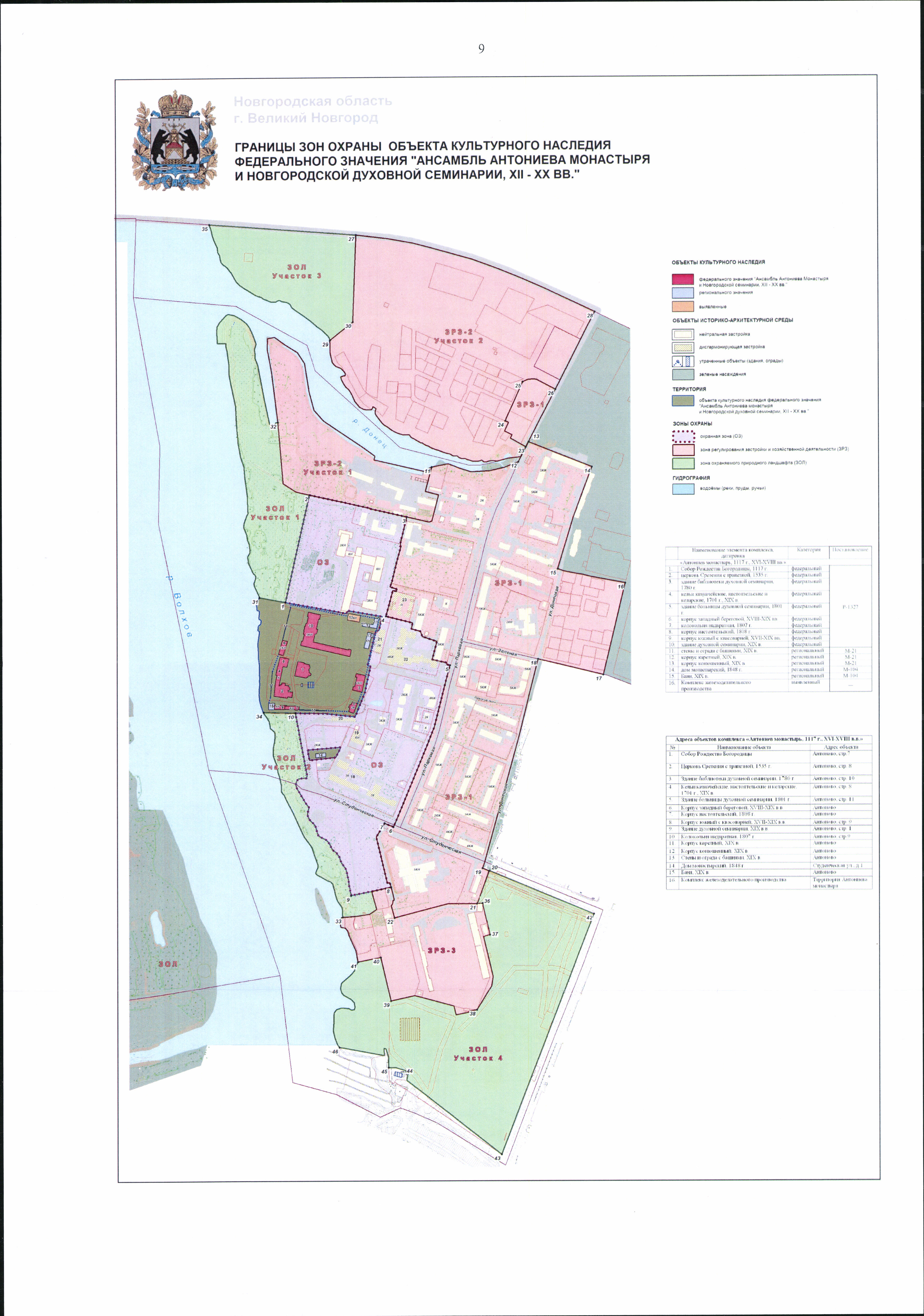
"Об утверждении границ зон охраны объекта культурного наследия федерального значения "Ансамбль Антониева монастыря и Новгородской духовной семинарии, ХII-ХХ века", включенного в Список всемирного наследия, а также особых режимов использования земель и требований к градостроительным регламентам в границах данных зон"
(Зарегистрирован 21.05.2018 № 51142)
"Об утверждении границ зон охраны объекта культурного наследия федерального значения "Ансамбль Антониева монастыря и Новгородской духовной семинарии, ХII-ХХ века", включенного в Список всемирного наследия, а также особых режимов использования земель и требований к градостроительным регламентам в границах данных зон"
(Зарегистрирован 21.05.2018 № 51142)
Номер опубликования: 0001201805220019
Дата опубликования:
22.05.2018
