Официальное опубликование правовых актов
ОФИЦИАЛЬНОЕ ОПУБЛИКОВАНИЕ
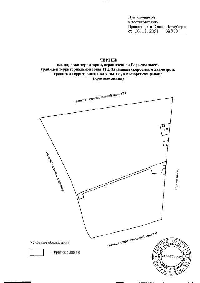
Постановление Правительства Санкт-Петербурга от 30.11.2021 № 930
"О внесении изменений в постановление Правительства Санкт-Петербурга от 24.05.2010 № 651"
Номер опубликования: 7800202112020006
Дата опубликования: 02.12.2021
Страница №4 из 28:
Увеличить