Приказ Министерства градостроительной политики Калининградской области от 18.01.2023 № 12
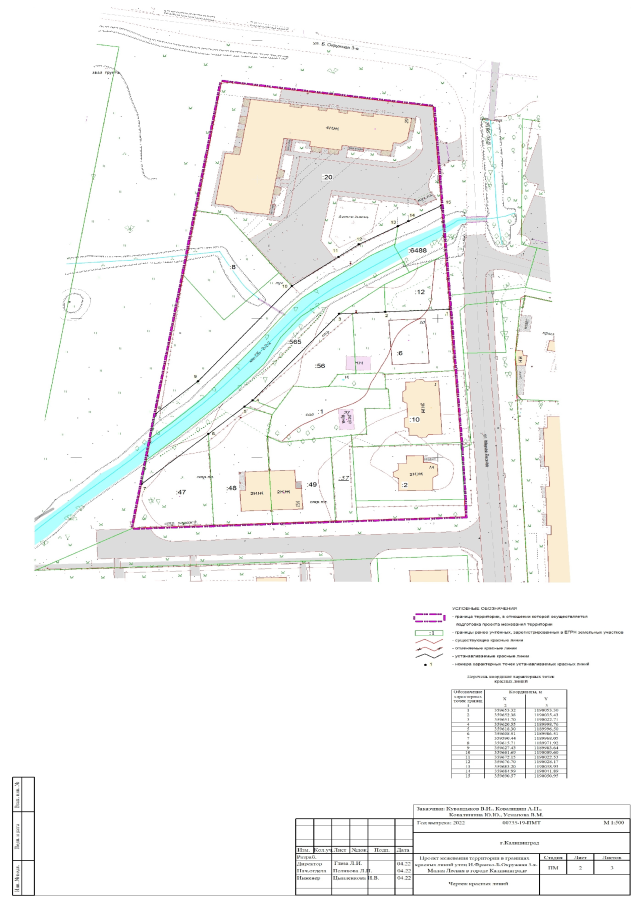
"Об утверждении проекта межевания территории в границах красных линий улиц И.Франко – Б.Окружная 3-я – Малая Лесная в городе Калининграде"
(Зарегистрирован 18.01.2023 № ГР/41/2023)
"Об утверждении проекта межевания территории в границах красных линий улиц И.Франко – Б.Окружная 3-я – Малая Лесная в городе Калининграде"
(Зарегистрирован 18.01.2023 № ГР/41/2023)
Номер опубликования: 3901202301240003
Дата опубликования:
24.01.2023
